Anteproyecto Arq. Paola Mester
Documentación Arq. Luciana Patat, Arq. Paola Mester
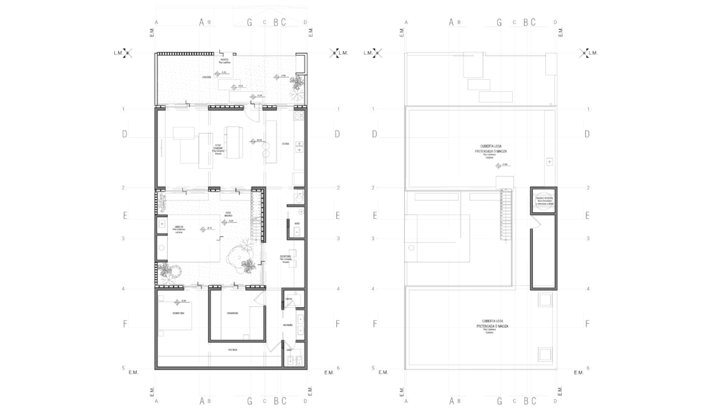
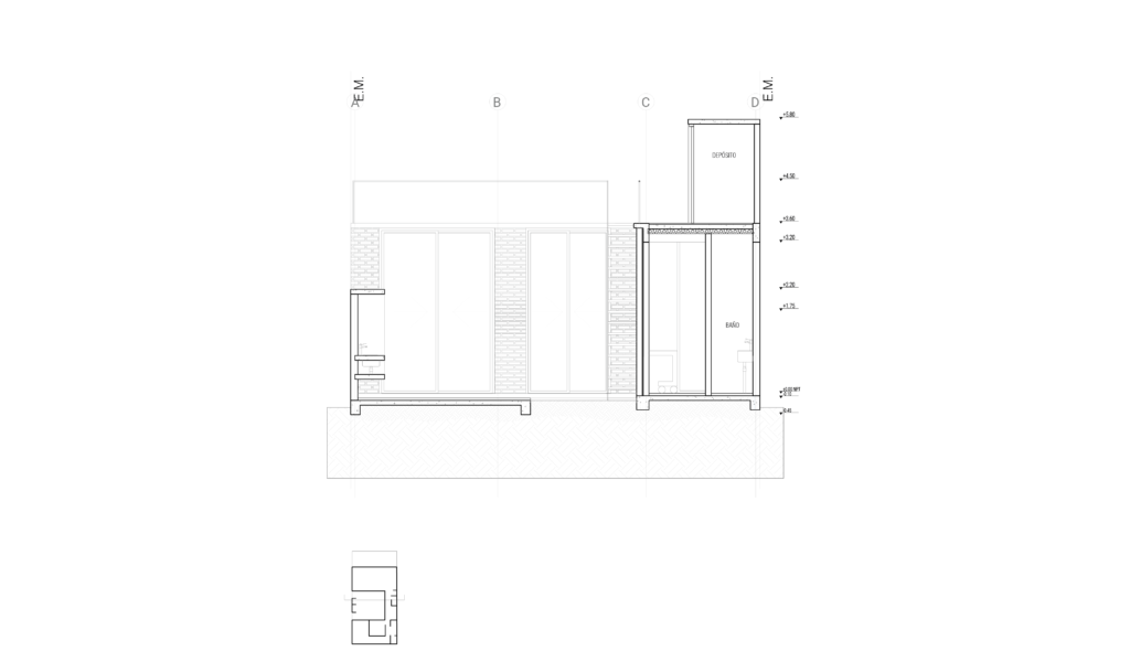
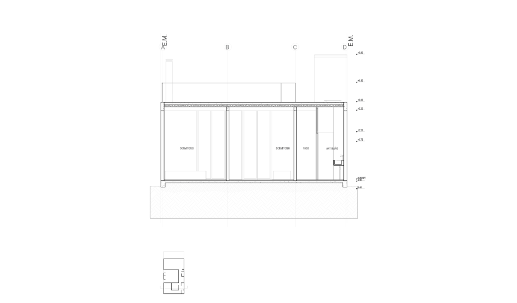
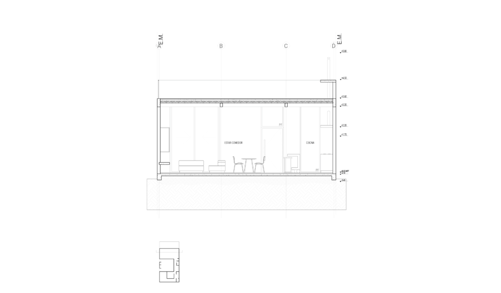
Tres terrenos es una obra que incluye 3 lotes independientes apareados: una casa para Flor, una quinta para Walter, y en la esquina un local en planta baja con un departamento para alquiler en planta alta.
Un dialogo formal se establece entre los tres proyectos, que aprovechan la triplicación de las definiciones materiales para acortar los tiempos de ejecución y minimizar los costos.


































