ARQ

quincho para cristina y fausto

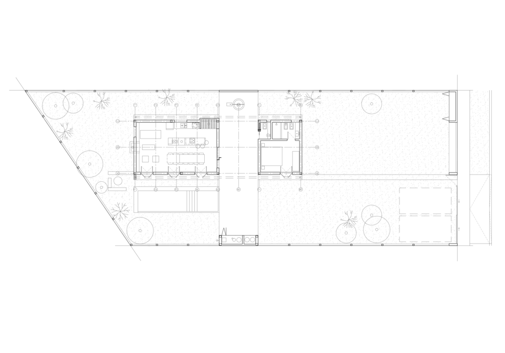
Proyecto quincho unifamiliar
San Benito, Entre Ríos
81 m2

Proyecto Arq. Paola Mester
Documentación y legajo Arq. Paola Mester
Cálculo estructuras Ing. Iñaki Maldonadoo

El techo a dos aguas descentrado de los perímetros aloja la casa. La misma se sabe larga, producto de la multiplicación de un módulo de 2x5m. Una primera etapa indica el quincho con piscina y la habitación, que corresponderá al último tramo de la futura vivienda.

M