Proyecto y dirección Arq. Paola Mester
Documentación y legajo Arq. Paola Mester, Arq. Luciana Patat
Cálculo estructuras Ing. Diego Pedroso
Ejecución albañilerías Ing. Mercedes Machado, Gaston Armandola
Ejecución instalaciones Nestor Roth
Ejecución herrerías Metalúrgica Lescano
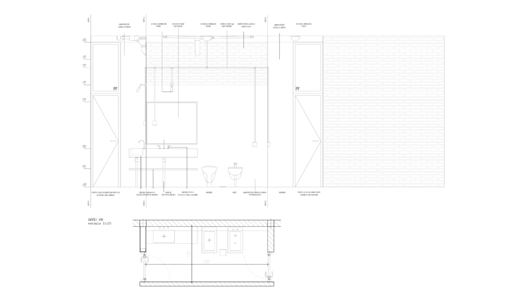
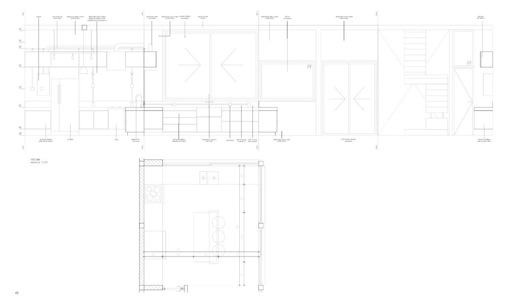
En un terreno de 10×30, un retiro de frente y un ingreso con vista al patio buscan otorgar profundidad a un planteo compacto. El proyecto se estructura a través de dos espigas unidas por un espacio en doble altura. En la planta baja un lado recibe un escritorio con ingreso independiente y estar, del otro cocina, comedor, núcleo escalera y sanitario.
La planta alta reparte la master suite a un lado, el más alejado, separado por un puente que da a la doble altura de las demás habitaciones.
En la fachada un muro alto cribado funciona de interfase, separando la vivienda de la calle, posibilitando una apertura a todos los patios desvinculándose del afuera.





































