ARQ

casa belo

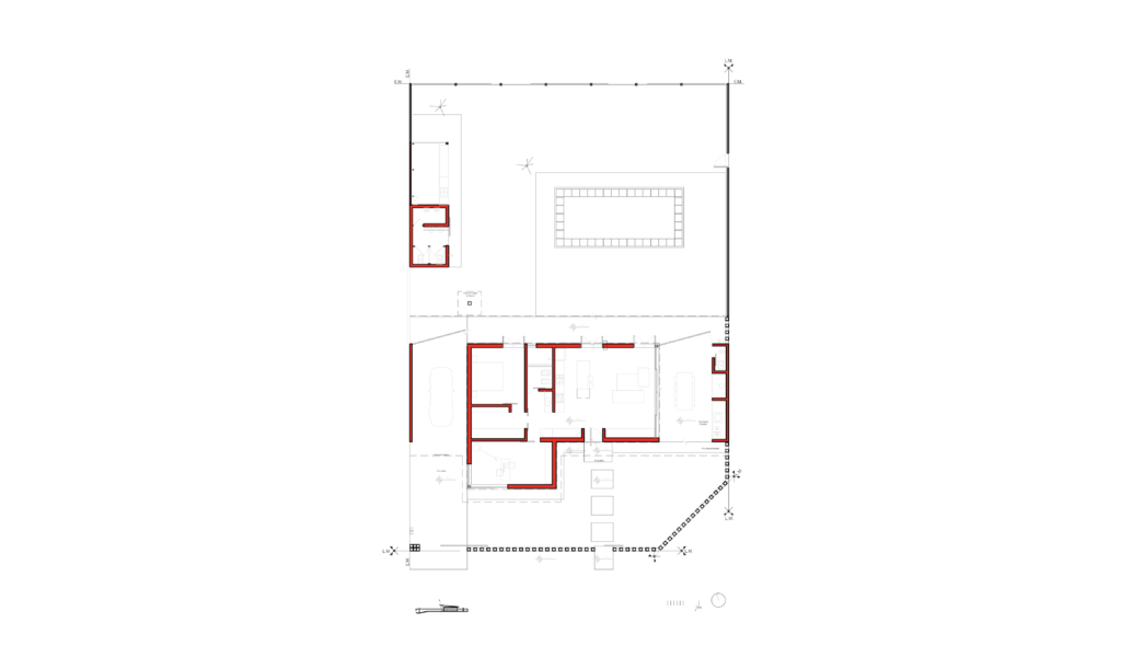
Proyecto vivienda unifamiliar
Paraná, Entre Ríos
Superficie 202 m2

Proyecto y legajo Arq. Paola Mester, Alejandro Trucco
Dirección Arq. Paola Mester
Cálculo estructuras Sandra Albano
Ejecución albañilerías Lambarri Construcciones
Ejecución instalaciones Nestor Roth
Ejecución herrerías Jorge Ramirez

Casa Belo es una vivienda situada en las cercanías del borde costero de la ciudad, en el barrio de la vieja toma de agua. El terreno posee una cañada que cruza sobre el fondo, estructurando la ubicación del proyecto, procurando convertirla en un espacio de vegetación nativa.
El aparejo del librero da forma a los límites de ladrillo, constituyendo la materia central tanto al exterior como al interior. Los elementos se diseñan en bruto para optimizar así materiales y tiempos.
La gran techumbre que se abre a los lados, aloja el programa desarrollado en única planta. El área social que incluye las áreas húmedas nucleadas, y un área intima para 2 habitaciones; el exterior de galerías y apoyo establece la relación con el parque y la piscina.


M